PROJET BARYE

Rénovation complète d'un appartement Haussmanien

PROJET BARYE

Rénovation complète d'un appartement Haussmanien

titre. Rénovation complète d'un appartement Parisien
date. 2021
ville. Paris 75017
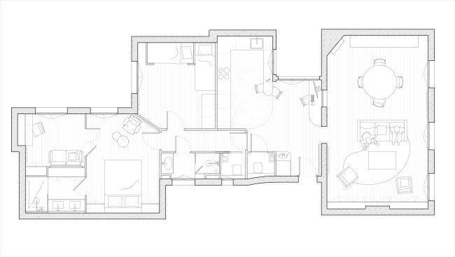
description. En plein coeur de Paris, dans un bâtiment Haussmannien, Rénovation complète d'un appartement de 120 m2 avec création de mobiliers sur mesure
état. Livré
Budget. non communiqué
Crédits photographies : Agathe Tissier
PROJET BARYE - details
PROJET BARYE
PROJET BARYE
PROJET BARYE
PROJET BARYE
PROJET BARYE
PROJET BARYE
PROJET BARYE
PROJET BARYE
PROJET BARYE
PROJET BARYE
PROJET BARYE
PROJET BARYE
PROJET BARYE
PROJET BARYE
PROJET BARYE
PROJET BARYE
PROJET BARYE
PROJET BARYE
PROJET BARYE
PROJET BARYE
PROJET BARYE
PROJET BARYE
PROJET BARYE
PROJET BARYE
PROJET BARYE
PROJET BARYE
PROJET BARYE
PROJET BARYE
PROJET BARYE
PROJET BARYE
PROJET BARYE
PROJET BARYE
PROJET BARYE